Capannone in vendita

Cigliano, Via Monte Bianco
€ 140.000
4 locali 4 locali
4900 Mq 4900 Mq
1 bagno 1 bagno

Capannone in vendita

Cigliano, Via Monte Bianco

Descrizione annuncio

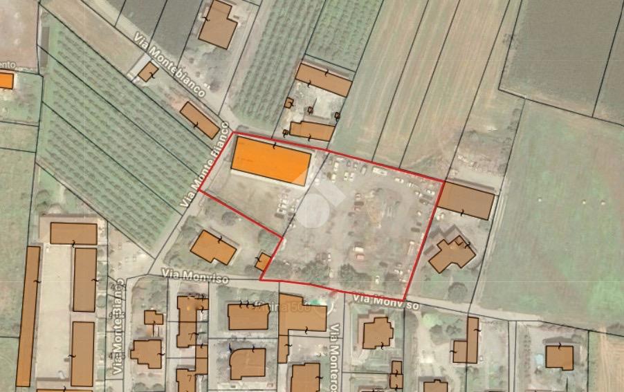
Capannone con uffici e 5.000 mq di area esterna recintata in vendita a Cigliano (VC)

In zona periferica, a soli 700 metri dal centro di Cigliano (VC), proponiamo in vendita soluzione industriale/artigianale composta da capannone con uffici e ampia area esterna recintata, dotata di doppio accesso carrabile da Via Monte Bianco e Via Monviso.
Soluzione ideale per attività produttive, logistiche, deposito o rimessaggio mezzi.

Caratteristiche

La proprietà si sviluppa su una superficie complessiva di circa 5.500 mq, completamente recintata, e accessibile mediante due cancelli di accesso indipendenti che garantiscono una gestione pratica ed efficiente dei flussi in entrata e uscita.

Il capannone, da ristrutturare e aperto sul fronte, ha una superficie coperta di circa 500 mq ed è così composto:

- Area uffici con due locali e servizi igienici;

- Ampia zona open space adibita a deposito/magazzino, con altezza media pari a 8,4 metri;

- Predisposizione per carroponte;

- Soppalco sopra la zona uffici, utilizzabile come ulteriore spazio di deposito, con altezza media pari a 5 metri;

- Ampio piazzale per manovra mezzi, parcheggio e operazioni di carico/scarico.

Punti di forza

- Doppio accesso carrabile da due vie distinte;

- Ampia superficie esterna (circa 5.000 mq);

- Terreno pianeggiante e facilmente sfruttabile;

- Ideale per rimessaggio veicoli, materiali o attrezzature;

- Autostrada A4 raggiungibile a 4 km (casello Borgo d’Ale) e 11 km (Rondissone).

ALTRE NOTE UTILI: Cigliano conta circa 4.500 abitanti. La sua posizione consente di raggiungere agevolmente il casello autostradale di Rondissone, situato a circa 10 km.
Le città di Chivasso e Ivrea distano circa 20 km, mentre Vercelli e Biella si raggiungono in circa 30 km.
Il paese è dotato di tutti i principali servizi, tra cui attività commerciali, uffici postali, istituti bancari e servizi di prima necessità.

Verifica catastale ed urbanistica in corso. La descrizione, le superfici e le immagini sono da considerarsi puramente indicative.

Contattaci per maggiori informazioni o per fissare una visita e seguici sui social per non perdere aggiornamenti e novità in anteprima.

Il team di Dreamers Srl è a tua disposizione.

Mostra tutto

Nelle vicinanze

Trasporto pubblico Trasporto pubblico
Cigliano (Via Moncrivello-Campo sportivo)
Cigliano (Via Moncrivello-Campo sportivo)
550 m
Cigliano (Via Moncrivello)
Cigliano (Via Moncrivello)
560 m
Ricariche auto elettriche Ricariche auto elettriche
EnelX Fast Moncrivello Brikò
550 m
Farmacia Farmacia
Farmacia
800 m
Supermercati Supermercati
Superstore Mercatò
500 m
Briko
610 m
Ristoranti Ristoranti
Trattoria del Moro
660 m
Ristorant Il Peso dal 1897
700 m
Agriturismo Il Cigno
990 m
Mostra tutto

Caratteristiche

Rif.:
61157351
Piano:
Terra di 2
Totale piani:
2
Condizionamento:
Assente
Ascensore:
No
Riscaldamento:
Assente
Mostra tutto
Prezzo Prezzo
€ 140.000
Rata mutuo Rata mutuo
€ 660 / mese
Spese annue Spese annue
€ 0
Proponi il tuo prezzoProponi il tuo prezzo
Immobile valutato con T·Valuta

Altre caratteristiche

Descrizione dei locali
Bagno Con Finestra

Classe Energetica

Questo immobile è esente da classe energetica
Anno di costruzione:
1960
Riscaldamento:
Assente

Ti interessa visionare l'immobile?

Fissa un appuntamento  Fissa un appuntamento

Richiedi informazioni

Clicca su Leggi per aprire l'informativa
* Questi campi sono obbligatori

Calcola il tuo mutuo

Semplice e senza impegno
Anticipo

( % )
Mutuo

( % )

pochi semplici passi

inserisci i tuoi dati
Questionario completato
Grazie per aver richiesto un appuntamento senza impegno con un nostro Consulente del Credito e Assicurativo.

Hai inserito correttamente tutti i dati necessari e a breve riceverai una e-mail con un link da convalidare per inviare i tuoi dati.
Affiliato
Dreamers Srl
Corso XXV Aprile, 44/A 13048 Santhià (VC)

Il nostro staff


  • Marco Schiaroli
    Responsabile

  • Mattia Pietrosino
    Affiliato
Corso XXV Aprile, 44/A 13048 Santhià (VC)
Zona: Santhià-Chivasso-Torrazza P.te-Crescentino-Cigliano-Caluso-Rondissone
Mostra su mappa
Affiliato
Dreamers Srl
Corso XXV Aprile, 44/A 13048 Santhià (VC)

2026 Tecnocasa Franchising S.p.A. - P. IVA 08365160152 - Via Monte Bianco 60/A 20089 Rozzano (MI). Ogni agenzia ha un proprio titolare ed è autonoma. Privacy policy | Policy utilizzo | Cookie policy