Complesso in vendita

Cigliano, Strada Strada Olmetto
€ 55.000
11 locali 11 locali
5462 Mq 5462 Mq
2 bagni 2 bagni

Complesso in vendita

Cigliano, Strada Strada Olmetto

Descrizione annuncio

Immobile IN TRATTATIVA - annuncio pubblicato a scopo promozionale

L'immobile da noi proposto è immerso nelle verdi campagne vercellesi, a soli 3 chilometri dal paese di Cigliano. La proprietà è accessibile mediante l'ingresso carraio collocato su Strada Olmetto.

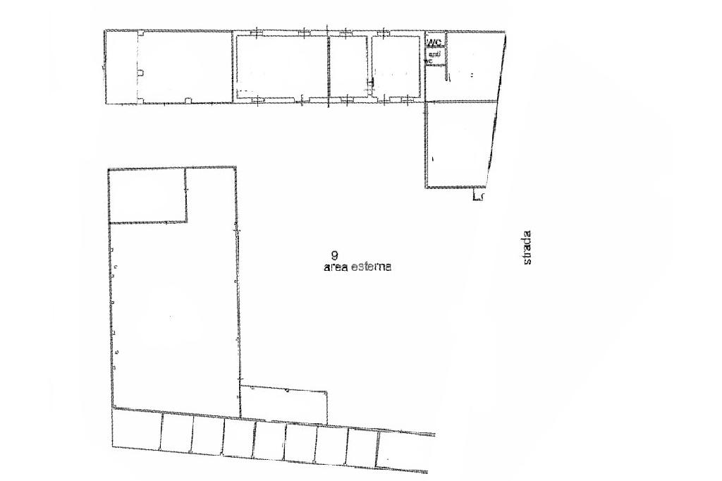
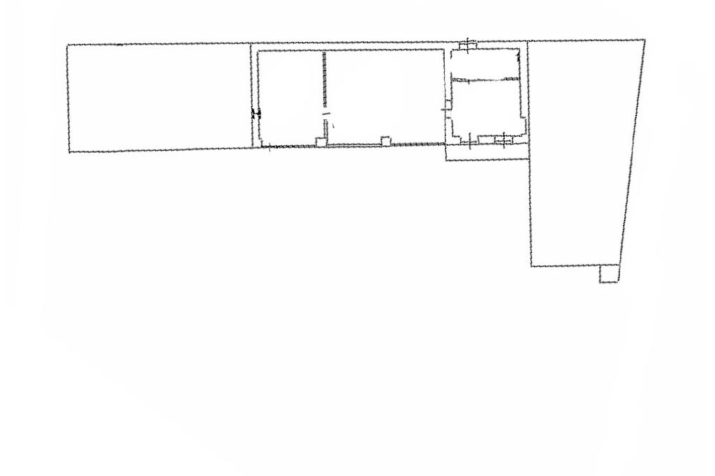
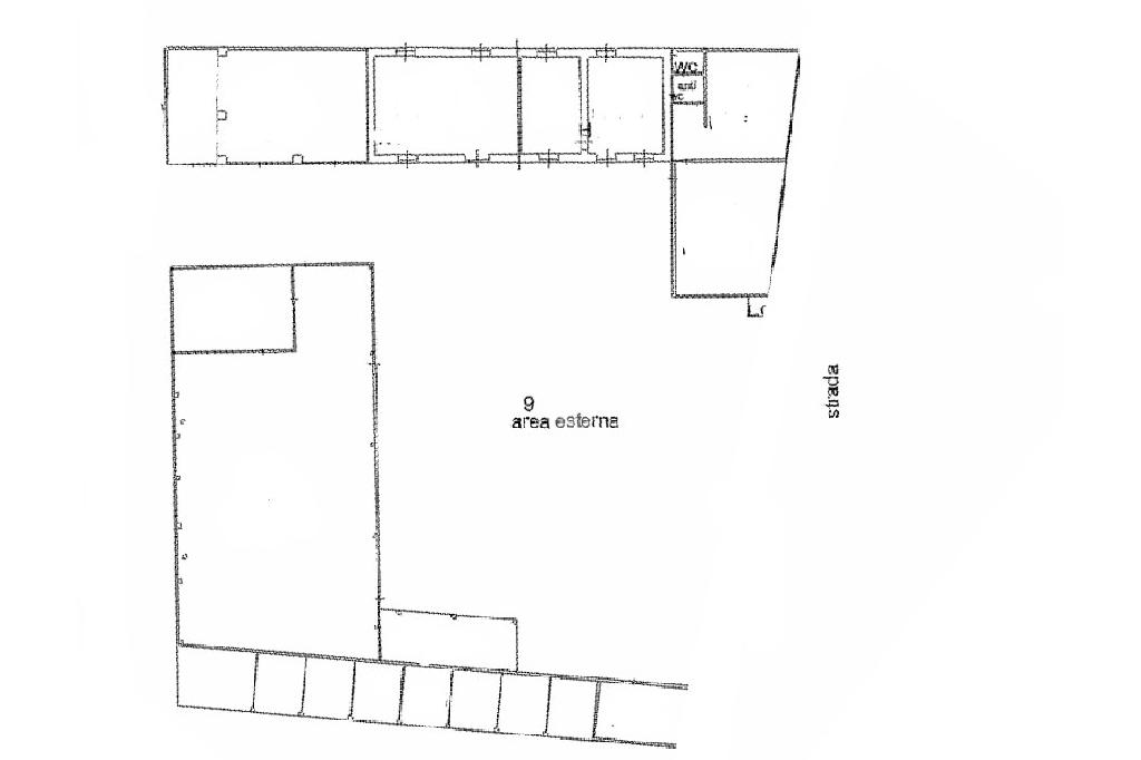
Un ampio piazzale di circa 400 metri quadrati rappresenta il fulcro della proprietà, che si sviluppa su una superficie totale di circa 5.500 metri quadrati, di cui circa 600 metri quadri coperti e così suddivisi:

- immobile su due livelli: il piano terra ospita una sala bar, adiacente alla quale vi è un'ulteriore stanza, ideale per ospitare i tavoli e ampliare il comfort. Le ampie vetrate del bar rendono il locale luminoso e offrono la vista sulla corte interna. A completare questa sezione vi sono i servizi igienici.

Il piano terra della struttura ospita inoltre quattro locali: due di essi sono comunicanti e si sviluppano su una superficie di 40 metri quadri mentre i restanti vani, di metrature rispettive di 40 e 20 metri quadrati, hanno accesso indipendente e completano il piano.

Raggiungibile tramite due scale esterne, il primo piano dispone di cinque locali. Tre di essi occupano circa 70 metri quadrati e sono comunicanti tra loro. Qui sono inoltre presenti una canna fumaria e i servizi igienici con doccia. I restanti due vani, di circa 40 metri quadri, sono raggiungibili separatamente mediante la seconda scala esterna e completano il piano.

- salone per eventi: con una superficie totale di circa 205 metri quadrati, suddivisi tra sala e cucina, il salone vanta tre ingressi e si sviluppa interamente al piano terra. Ideale per ricevere ospiti e organizzare eventi, grazie alla sua capienza questa sezione offre un notevole valore aggiunto per esperienze ed attività da affiancare alla principale.

La proprietà è completata da 5.000 metri quadrati di terreno, che offrono la possibilità di espandere o realizzare ulteriori progetti.

Il riscaldamento, attualmente assente, è presente solo in alcune stanze del complesso, quali il salone del piano terra e una stanza del primo piano, tramite termoconvettori elettrici.

L'intero stabile, che non ha ricevuto cure e migliorie per un lungo periodo, necessita oggi di interventi di ristrutturazione. Grazie agli ampi spazi e alla totale privacy, la soluzione risulta ideale per chi desidera avviare un'impresa nel settore agricolo o turistico, sfruttando al meglio la natura circostante e le potenzialità del territorio.

ALTRE NOTE UTILI: Cigliano conta circa 4.550 abitanti. A soli 20 chilometri si trovano le città di Chivasso e Ivrea, mentre a 30 chilometri si raggiungono Vercelli e Biella. L'ingresso autostradale A4 Torino-Trieste dista solo 5 km (verso Borgo d'Ale), mentre quello di Rondissone è a 11 km.

Verifica catastale ed urbanistica in corso. La descrizione, i dettagli e le foto sono pertanto puramente indicativi.

Mostra tutto

Nelle vicinanze

Trasporto pubblico Trasporto pubblico
Cigliano (Corso D'Annunzio115)
Cigliano (Corso D'Annunzio115)
2,2 Km
Cigliano (Corso D'Annunzio116)
Cigliano (Corso D'Annunzio116)
2,3 Km
Farmacia Farmacia
Farmacia
2,5 Km
Supermercati Supermercati
Superstore Mercatò
2,5 Km
Ristoranti Ristoranti
Agriturismo Il Cigno
2,0 Km
Ristorant Il Peso dal 1897
2,4 Km
Trattoria del Moro
2,5 Km
Mostra tutto

Caratteristiche

Rif.:
61130087
Piano:
Terra con giardino di 2
Totale piani:
2
Balconi:
1
Condizionamento:
Assente
Ascensore:
No
Mostra tutto
Prezzo Prezzo
€ 55.000
Rata mutuo Rata mutuo
€ 259 / mese
Spese annue Spese annue
€ 0
Proponi il tuo prezzoProponi il tuo prezzo

Altre caratteristiche

Descrizione dei locali
Bagno Con Finestra

Classe Energetica

Questo immobile è esente da classe energetica
Anno di costruzione:
1970
Riscaldamento:
Autonomo
Tipo impianto:
A stufa
Tipo alimentazione:
Altro

Ti interessa visionare l'immobile?

Fissa un appuntamento  Fissa un appuntamento

Richiedi informazioni

Clicca su Leggi per aprire l'informativa
* Questi campi sono obbligatori

Calcola il tuo mutuo

Semplice e senza impegno
Anticipo

( % )
Mutuo

( % )

pochi semplici passi

inserisci i tuoi dati
Questionario completato
Grazie per aver richiesto un appuntamento senza impegno con un nostro Consulente del Credito e Assicurativo.

Hai inserito correttamente tutti i dati necessari e a breve riceverai una e-mail con un link da convalidare per inviare i tuoi dati.
Affiliato
Dreamers Srl
Corso XXV Aprile, 44/A 13048 Santhià (VC)

Il nostro staff


  • Marco Schiaroli
    Responsabile

  • Mattia Pietrosino
    Affiliato
Corso XXV Aprile, 44/A 13048 Santhià (VC)
Zona: Santhià-Chivasso-Torrazza P.te-Crescentino-Cigliano-Caluso-Rondissone
Mostra su mappa
Affiliato
Dreamers Srl
Corso XXV Aprile, 44/A 13048 Santhià (VC)

2026 Tecnocasa Franchising S.p.A. - P. IVA 08365160152 - Via Monte Bianco 60/A 20089 Rozzano (MI). Ogni agenzia ha un proprio titolare ed è autonoma. Privacy policy | Policy utilizzo | Cookie policy