Capannone in vendita

Crescentino, Via G. Ferraris
€ 400.000
6 locali 6 locali
3000 Mq 3000 Mq
1 bagno 1 bagno

Capannone in vendita

Crescentino, Via G. Ferraris

Descrizione annuncio

La proprietà è ubicata in Via G. Ferraris, strada che si dirama dalla provinciale e che consente un accesso allo stabile comodo e al contempo riservato.

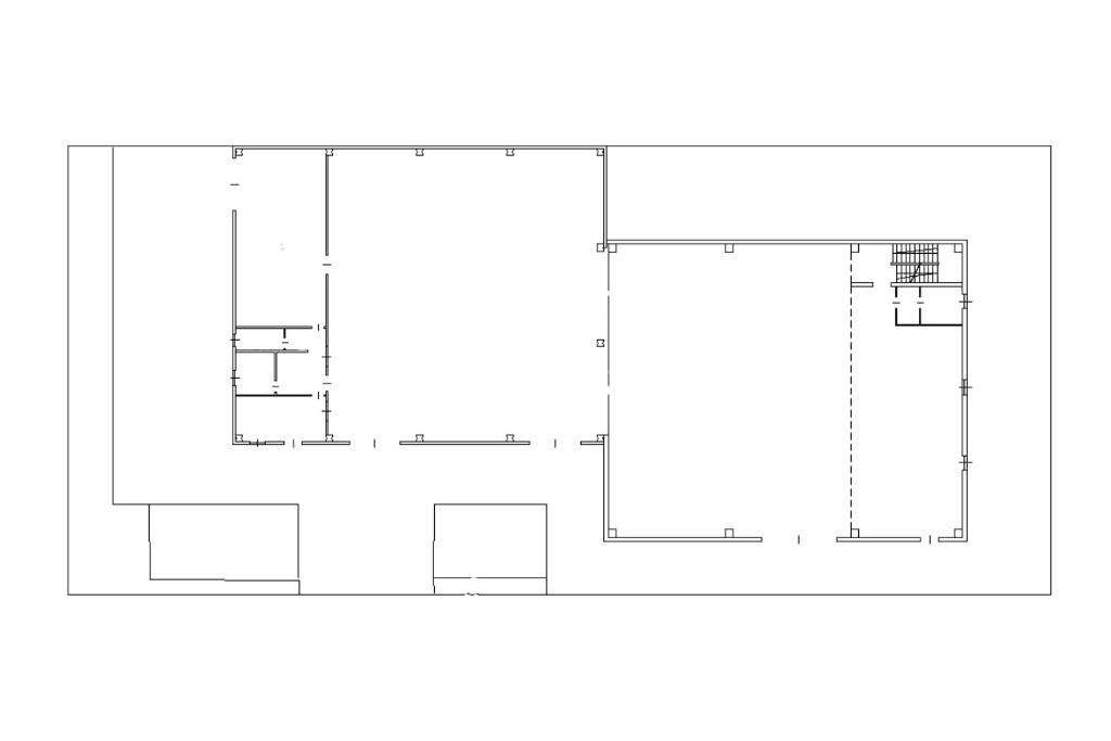
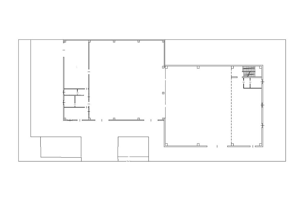
La soluzione è destinata a uso industriale ed è sviluppata su una superficie coperta di circa 1.000 mq, comprensiva di uffici con servizi igienici, officina/magazzino e due capannoni.

La proprietà è accessibile tramite tre cancelli carrai, che conducono all'interno dell'area esterna recintata di circa 2.000 mq.

L’immobile è così composto:

- Uffici: tre locali, di cui uno di collegamento tra gli stessi, accessoriati di servizi igienici e impianto di condizionamento e riscaldamento tramite radiatori alimentati a metano.

- Officina: sviluppata su una superficie di circa 80 mq, dotata di portellone con ingresso esterno. È fornita di sistema di riscaldamento tramite aerotermo e di impianto di condizionamento.

- Capannone 1: sviluppato su una superficie di circa 290 mq, con altezza massima pari a 6,4 m. Dotato di due portelloni con ingresso a nord e accessoriato di servizi igienici.

- Capannone 2: sviluppato su una superficie di circa 600 mq, con altezza massima pari a 7,15 m. Dotato di un portellone con ingresso a nord e soppalco.

Completano la soluzione tre ingressi carrai posizionati sul lato nord e il sistema di allarme.

ALTRE NOTE UTILI: Crescentino conta circa 7.900 abitanti. La sua posizione consente di raggiungere comodamente le principali città: Torino, capoluogo regionale, e Vercelli, capoluogo provinciale, distano rispettivamente 44 km e 30 km. Crescentino è una cittadina attiva; negozi e servizi dislocati in tutto il paese la rendono piacevolmente vivace e un luogo ideale in cui avviare la propria attività.

Verifica catastale e urbanistica in corso. La descrizione, i dettagli e le fotografie sono pertanto puramente indicativi.

Mostra tutto

Nelle vicinanze

Trasporto pubblico Trasporto pubblico
Crescentino
Crescentino
760 m
Crescentino (v.Colombo)
Crescentino (v.Colombo)
430 m
Crescentino (P.L.)
Crescentino (P.L.)
650 m
Ricariche auto elettriche Ricariche auto elettriche
Municipio Di Crescentino
870 m
Scuole Scuole
Istituto Tecnico Commerciale Geometri "Piero Calamandrei" (Sez. Gemetri)
910 m
Istituto Istruzione Superiore Piero Calamandrei
960 m
Istituto Comprensivo "Serra"- Scuola Primaria
960 m
Istituto Istruzione superiore Piero Calamandrei
960 m
Scuola Secondaria di Primo Grado "A. Caretto"
1,1 Km
Farmacia Farmacia
Parafarmacia Conad
960 m
Supermercati Supermercati
Conad
940 m
Mercatò
1,2 Km
Jing Fa
1,2 Km
Bar Bar
Romeo - Bar Cremeria
1,2 Km
Ristoranti Ristoranti
Il Portico - Ristorante / Pizzeria
920 m
Il Vichingo
970 m
Ristorante Villa Rosa
2,0 Km
Ristoranti
3,0 Km
Mostra tutto

Caratteristiche

Rif.:
61154329
Totale piani:
2
Condizionamento:
Predisposizione impianto
Ascensore:
No
Riscaldamento:
Autonomo
Giardino:
Privato
Mostra tutto
Prezzo Prezzo
€ 400.000
Rata mutuo Rata mutuo
€ 1.888 / mese
Spese annue Spese annue
€ 0
Proponi il tuo prezzoProponi il tuo prezzo

Classe Energetica

C
C
C
C
C
C
C
C
C
Anno di costruzione:
2006
Riscaldamento:
Autonomo
Tipo impianto:
A radiatori
Tipo alimentazione:
Metano

Ti interessa visionare l'immobile?

Fissa un appuntamento  Fissa un appuntamento

Richiedi informazioni

Clicca su Leggi per aprire l'informativa
* Questi campi sono obbligatori

Calcola il tuo mutuo

Semplice e senza impegno
Anticipo

( % )
Mutuo

( % )

pochi semplici passi

inserisci i tuoi dati
Questionario completato
Grazie per aver richiesto un appuntamento senza impegno con un nostro Consulente del Credito e Assicurativo.

Hai inserito correttamente tutti i dati necessari e a breve riceverai una e-mail con un link da convalidare per inviare i tuoi dati.
Affiliato
Dreamers Srl
Corso XXV Aprile, 44/A 13048 Santhià (VC)

Il nostro staff


  • Samantha Mainiero
    Coordinatrice

  • Marco Schiaroli
    Responsabile

  • Mattia Pietrosino
    Affiliato
Corso XXV Aprile, 44/A 13048 Santhià (VC)
Zona: Santhià-Chivasso-Torrazza P.te-Crescentino-Cigliano-Caluso-Rondissone
Mostra su mappa
Affiliato
Dreamers Srl
Corso XXV Aprile, 44/A 13048 Santhià (VC)

2025 Tecnocasa Franchising S.p.A. - P. IVA 08365160152 - Via Monte Bianco 60/A 20089 Rozzano (MI). Ogni agenzia ha un proprio titolare ed è autonoma. Privacy policy | Policy utilizzo | Cookie policy