Negozio in vendita

Fontanetto Po, Corso Massimo Montano
€ 120.000
18 locali 18 locali
300 Mq 300 Mq
11 bagni 11 bagni

Negozio in vendita

Fontanetto Po, Corso Massimo Montano

Descrizione annuncio

Vendita Hotel, Ristorante e Appartamento a Fontanetto Po (VC)

Proponiamo in vendita un’opportunità di investimento unica nel cuore di Fontanetto Po (VC): un intero complesso immobiliare parzialmente ristrutturato che combina attività di ristorazione, affittacamere e residenza privata.

Caratteristiche

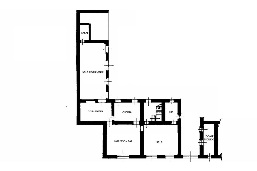
- Ristorante: composto da due sale per un totale di circa 100 mq, ingresso con bancone bar (30,28 mq) e cucina professionale attrezzata (35 mq) con 12 fuochi e area plonge.
La sala ristorante più piccola è decorata da un caratteristico soffitto a volta in mattoni a vista e, adiacente, vi è un pratico vano ripostiglio (9 mq). I servizi igienici sono suddivisi per uomo/donna ed è presente un bagno a norma per disabili.

- Albergo/Affittacamere: costituito da sette stanze ad uso ricettivo, alcune con bagno privato interno e altre con bagno esterno collocato di fronte alla camera. Completa il piano uno spogliatoio.

- Appartamento: situato al primo piano (circa 80 mq), composto da soggiorno/cucina open space, due camere da letto, servizi igienici con doccia e ampio ripostiglio.

- Cantina/Magazzino: due locali per un totale di circa 70 mq, con suggestive volte in mattoni.

- Area esterna: cortile privato di 250 mq con gazebo di 36 mq, ideale per i tavoli del ristorante durante la bella stagione.

Dotazioni

- Riscaldamento a metano con caldaia nuova installata nel 2022.

- Predisposizione per condizionamento autonomo caldo/freddo.

- Tetto rifatto nel 1990.

Punti di forza

- Posizione: bar e servizi sviluppati lungo il medesimo corso.

- Redditività potenziale: struttura plurifunzionale con spazi già ottimizzati per la gestione integrata di attività e alloggio.

Verifica documentale in corso. La descrizione, i dettagli e le foto sono pertanto puramente descrittivi e a scopo illustrativo.

Contattaci per maggiori informazioni o per fissare una visita e seguici sui social per non perdere aggiornamenti e novità in anteprima.

Il team di Dreamers SRL è a tua disposizione.

Mostra tutto

Nelle vicinanze

Trasporto pubblico Trasporto pubblico
Fontanetto Po
Fontanetto Po
420 m
Scuole Scuole
Scuole
100 m
Ristoranti Ristoranti
Locanda dell'Orso
20 m
Mostra tutto

Caratteristiche

Rif.:
61130886
Piano:
Su più livelli di 2
Totale piani:
2
Balconi:
2
Condizionamento:
Predisposizione impianto
Ascensore:
No
Mostra tutto
Prezzo Prezzo
€ 120.000
Rata mutuo Rata mutuo
€ 566 / mese
Spese annue Spese annue
€ 0
Proponi il tuo prezzoProponi il tuo prezzo

Classe Energetica

G
G
G
G
G
G
G
G
G
EP globale non rinnovabile:
285.56 kW h/m² anno
EP globale rinnovabile:
57.34 kW h/m² anno
EP invernale del fabbricato:
EP estiva del fabbricato:
Anno di costruzione:
1850
Riscaldamento:
Autonomo
Tipo impianto:
A radiatori
Tipo alimentazione:
Metano

Ti interessa visionare l'immobile?

Fissa un appuntamento  Fissa un appuntamento

Richiedi informazioni

Clicca su Leggi per aprire l'informativa
* Questi campi sono obbligatori

Calcola il tuo mutuo

Semplice e senza impegno
Anticipo

( % )
Mutuo

( % )

pochi semplici passi

inserisci i tuoi dati
Questionario completato
Grazie per aver richiesto un appuntamento senza impegno con un nostro Consulente del Credito e Assicurativo.

Hai inserito correttamente tutti i dati necessari e a breve riceverai una e-mail con un link da convalidare per inviare i tuoi dati.
Affiliato
Dreamers Srl
Corso XXV Aprile, 44/A 13048 Santhià (VC)

Il nostro staff


  • Samantha Mainiero
    Coordinatrice

  • Marco Schiaroli
    Responsabile

  • Mattia Pietrosino
    Affiliato
Corso XXV Aprile, 44/A 13048 Santhià (VC)
Zona: Santhià-Chivasso-Torrazza P.te-Crescentino-Cigliano-Caluso-Rondissone
Mostra su mappa
Affiliato
Dreamers Srl
Corso XXV Aprile, 44/A 13048 Santhià (VC)

2025 Tecnocasa Franchising S.p.A. - P. IVA 08365160152 - Via Monte Bianco 60/A 20089 Rozzano (MI). Ogni agenzia ha un proprio titolare ed è autonoma. Privacy policy | Policy utilizzo | Cookie policy