Complesso in vendita

Livorno Ferraris, Via Tarachia Giordano
€ 200.000
30 locali 30 locali
4000 Mq 4000 Mq
13 bagni 13 bagni

Complesso in vendita

Livorno Ferraris, Via Tarachia Giordano

Descrizione annuncio

Vendita complesso in centro a Livorno Ferraris (VC) – 4.000 mq con piscina, giardino e casa custode

Proponiamo in vendita, nel cuore di Livorno Ferraris, un imponente complesso immobiliare su più livelli, con una destinazione d'uso estremamente versatile (ideale come RSA, casa di riposo, struttura sanitaria ecc.) dotata di un forte potenziale di sviluppo. La struttura è corredata da un ampio giardino privato e dalla casa custode adiacente, attualmente locata.

Caratteristiche

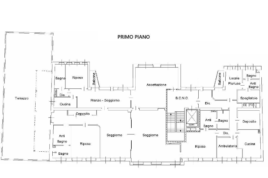
L’immobile si estende su una superficie totale di 2.500 mq ed è strutturato su più livelli (piano interrato, piano terreno, piano primo, piano secondo e piano terzo) offrendo tre ingressi, collocati rispettivamente su Via Tarachia Giordano e Via Martiri della Libertà;

- piano interrato: da ristrutturare, locali destinati principalmente agli impianti;

- piano rialzato: da ristrutturare, locali vari e piscina per riabilitazione con predisposizione SPA;

- primo piano: completamente ristrutturato, con infissi in doppio vetro, ex asilo con ampio terrazzo;

- secondo e terzo piano: da ristrutturare, locali vari con terrazzo;

- area esterna: circa 700 mq con fontana, depositi e cancello carraio su via Martiri della Libertà;

- casa custode: attualmente locata, con piccolo cortile esterno in comune con gli alloggi;

- alloggi: immobile adiacente alla casa custode costituito da due appartamenti.

Dotazioni

- Riscaldamento autonomo a metano;

- Rampe per accesso a persone con disabilità;

- Sistema antincendio;

- Ascensore.

Punti di Forza

- Piscina per riabilitazione e predisposizione per SPA;

- Giardino di 700 mq con fontana;

- Casa custode con contratto attivo;

- Quattro posti auto a disposizione.

Contattaci per maggiori informazioni o per fissare una visita e seguici sui social per non perdere aggiornamenti e novità in anteprima.

Il team di Dreamers SRL è a tua disposizione.

Mostra tutto

Nelle vicinanze

Trasporto pubblico Trasporto pubblico
Livorno Ferraris
Livorno Ferraris
770 m
Ricariche auto elettriche Ricariche auto elettriche
Emobitaly Livorno Ferraris
130 m
Scuole Scuole
Scuole Elementari e Medie
540 m
Farmacia Farmacia
Farmacia Mezzalama
160 m
Farmacia Gallo
250 m
Supermercati Supermercati
Carrefour Express
290 m
Supermercati
370 m
Conad
830 m
Bar Bar
Bar Albergo Stazione
750 m
Ristoranti Ristoranti
Pizzeria Sorrento
270 m
Mostra tutto

Caratteristiche

Rif.:
61128288
Piano:
Su più livelli di 3 con ascensore
Totale piani:
3
Posti auto:
4
Condizionamento:
Assente
Ascensore:
Mostra tutto
Prezzo Prezzo
€ 200.000
Rata mutuo Rata mutuo
€ 944 / mese
Spese annue Spese annue
€ 0
Proponi il tuo prezzoProponi il tuo prezzo

Classe Energetica

B
B
B
B
B
B
B
B
B
EP globale non rinnovabile:
126.68 kW h/m² anno
EP globale rinnovabile:
13.49 kW h/m² anno
EP invernale del fabbricato:
EP estiva del fabbricato:
Anno di costruzione:
2000
Riscaldamento:
Autonomo
Tipo impianto:
A radiatori
Tipo alimentazione:
Metano

Ti interessa visionare l'immobile?

Fissa un appuntamento  Fissa un appuntamento

Richiedi informazioni

Clicca su Leggi per aprire l'informativa
* Questi campi sono obbligatori

Calcola il tuo mutuo

Semplice e senza impegno
Anticipo

( % )
Mutuo

( % )

pochi semplici passi

inserisci i tuoi dati
Questionario completato
Grazie per aver richiesto un appuntamento senza impegno con un nostro Consulente del Credito e Assicurativo.

Hai inserito correttamente tutti i dati necessari e a breve riceverai una e-mail con un link da convalidare per inviare i tuoi dati.
Affiliato
Dreamers Srl
Corso XXV Aprile, 44/A 13048 Santhià (VC)

Il nostro staff


  • Samantha Mainiero
    Coordinatrice

  • Marco Schiaroli
    Responsabile

  • Mattia Pietrosino
    Affiliato
Corso XXV Aprile, 44/A 13048 Santhià (VC)
Zona: Santhià-Chivasso-Torrazza P.te-Crescentino-Cigliano-Caluso-Rondissone
Mostra su mappa
Affiliato
Dreamers Srl
Corso XXV Aprile, 44/A 13048 Santhià (VC)

2025 Tecnocasa Franchising S.p.A. - P. IVA 08365160152 - Via Monte Bianco 60/A 20089 Rozzano (MI). Ogni agenzia ha un proprio titolare ed è autonoma. Privacy policy | Policy utilizzo | Cookie policy