Complesso in vendita

Livorno Ferraris, Via Dante Alighieri
€ 150.000
21 locali 21 locali
1000 Mq 1000 Mq
2 bagni 2 bagni

Complesso in vendita

Livorno Ferraris, Via Dante Alighieri

Descrizione annuncio

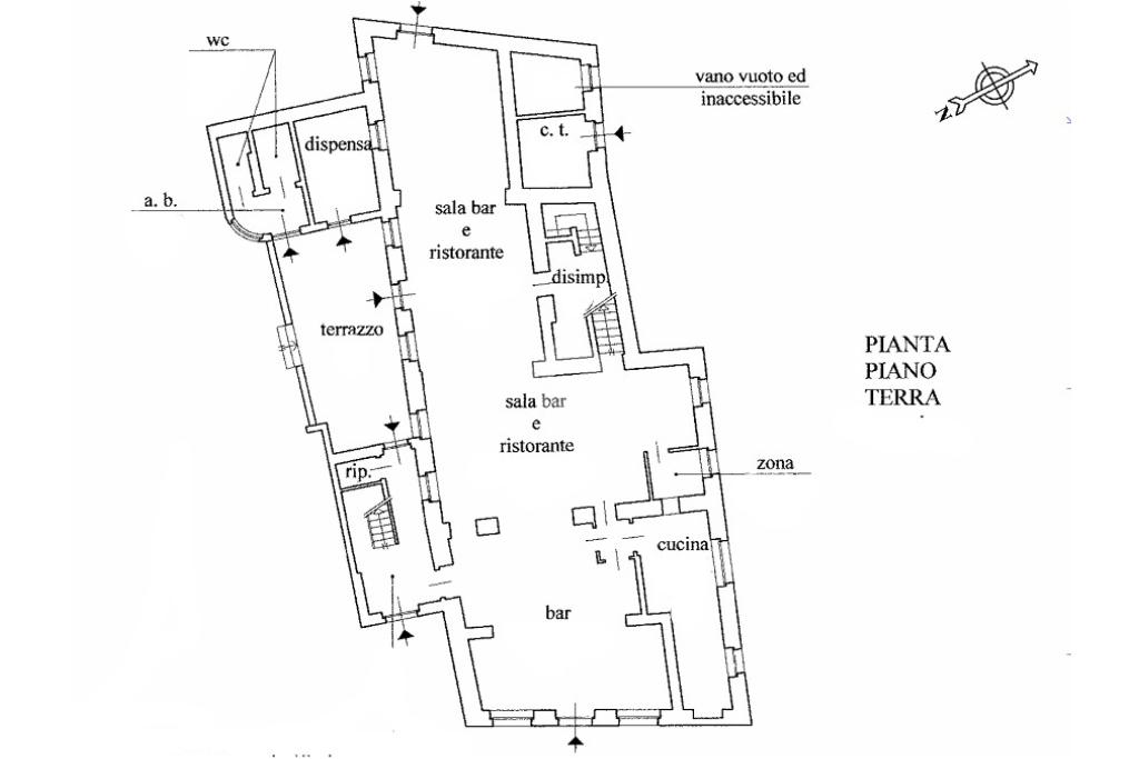
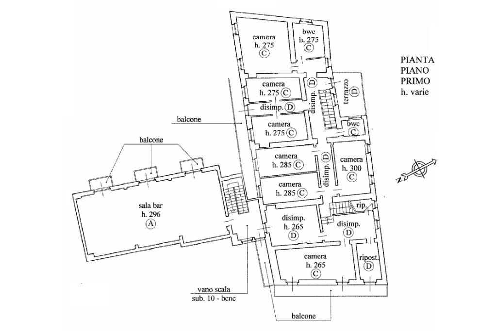
ESCLUSIVO Complesso Commerciale e Residenziale a Livorno Ferraris – Albergo su 2 livelli, Ristorante/Pub, Negozio e Trilocale. Investimento Unico.

Proponiamo in vendita un intero stabile polifunzionale situato nel cuore di Livorno Ferraris, perfetto per chi desidera avviare o ampliare attività ricettive e commerciali, con in aggiunta una comoda unità residenziale. L’immobile si trova in posizione strategica con accesso principale da Corso Leone Giordano e offre spazi versatili con un grande potenziale di rendita. Il complesso si sviluppa su più livelli ed è collegato da un ampio cortile comune.

Struttura Ricettiva (Hotel e Ristorazione)

L’albergo, circa 200 mq distribuiti su primo e secondo piano, comprende 9 camere e un salone di circa 90 mq. Necessita di lavori di ristrutturazione, ma dispone della predisposizione completa degli impianti, rendendo agevole la riqualificazione.

Il Pub/Ristorante, circa 325 mq, costituito da cucina (canna fumaria presente), pass, servizi igienici esterni, magazzino, cantina e terrazzo esterno, ideale per attività food & beverage.

Unità Commerciale (Negozio)

Il negozio, circa 75 mq, gode di affaccio fronte strada con vetrina espositiva e saracinesche, garantendo alta visibilità. Completano la parte commerciale circa 110 mq di magazzini collegati sia al negozio sia al cortile, perfetti come deposito o ampliamento della superficie operativa.

Unità Residenziale

L’appartamento trilocale, circa 75 mq, si trova al primo piano ed è collegato internamente al negozio. Offre ottime possibilità come abitazione o alloggio per il gestore dell’attività.

Pertinenze Esterne

- Cortile comune di circa 150 mq con ingresso carraio da Corso Leone Giordano

- Box auto singolo di circa 20 mq

Dotazioni e Impianti

- Stato dell’immobile: alcune aree si presentano da ristrutturare completamente, altre da riqualificare solo parzialmente, offrendo così ampie possibilità di personalizzazione e potenziale accesso agli incentivi per la riqualificazione edilizia.

- Riscaldamento: autonomo a metano, con predisposizioni per stufe.

Punti di Forza

- Struttura versatile con accessi indipendenti

- Posizione centrale e ad alta visibilità

- Parcheggi pubblici nelle immediate vicinanze

Verifica catastale ed urbanistica in corso. La descrizione, i dettagli e le foto sono pertanto puramente descrittivi.

Contattaci per maggiori informazioni o per fissare una visita e seguici sui social per non perdere aggiornamenti e novità in anteprima.

Il team di Dreamers SRL è a tua disposizione.

Mostra tutto

Nelle vicinanze

Trasporto pubblico Trasporto pubblico
Livorno Ferraris
Livorno Ferraris
540 m
Ricariche auto elettriche Ricariche auto elettriche
Emobitaly Livorno Ferraris
150 m
Scuole Scuole
Scuole Elementari e Medie
320 m
Farmacia Farmacia
Farmacia Gallo
50 m
Farmacia Mezzalama
170 m
Supermercati Supermercati
Carrefour Express
110 m
Supermercati
130 m
Conad
730 m
Bar Bar
Bar Albergo Stazione
520 m
Ristoranti Ristoranti
Pizzeria Sorrento
120 m
Mostra tutto

Caratteristiche

Rif.:
61145643
Piano:
Su più livelli di 3
Totale piani:
3
Box:
1
Balconi:
5
Condizionamento:
Assente
Mostra tutto
Prezzo Prezzo
€ 150.000
Rata mutuo Rata mutuo
€ 708 / mese
Spese annue Spese annue
€ 0
Proponi il tuo prezzoProponi il tuo prezzo

Classe Energetica

F
F
F
F
F
F
F
F
F
EP globale non rinnovabile:
296.32 kW h/m² anno
EP globale rinnovabile:
0.00 kW h/m² anno
EP invernale del fabbricato:
EP estiva del fabbricato:
Anno di costruzione:
1800
Riscaldamento:
Autonomo
Tipo impianto:
A stufa
Tipo alimentazione:
Metano

Ti interessa visionare l'immobile?

Fissa un appuntamento  Fissa un appuntamento

Richiedi informazioni

Clicca su Leggi per aprire l'informativa
* Questi campi sono obbligatori

Calcola il tuo mutuo

Semplice e senza impegno
Anticipo

( % )
Mutuo

( % )

pochi semplici passi

inserisci i tuoi dati
Questionario completato
Grazie per aver richiesto un appuntamento senza impegno con un nostro Consulente del Credito e Assicurativo.

Hai inserito correttamente tutti i dati necessari e a breve riceverai una e-mail con un link da convalidare per inviare i tuoi dati.
Affiliato
Dreamers Srl
Corso XXV Aprile, 44/A 13048 Santhià (VC)

Il nostro staff


  • Samantha Mainiero
    Coordinatrice

  • Marco Schiaroli
    Responsabile

  • Mattia Pietrosino
    Affiliato
Corso XXV Aprile, 44/A 13048 Santhià (VC)
Zona: Santhià-Chivasso-Torrazza P.te-Crescentino-Cigliano-Caluso-Rondissone
Mostra su mappa
Affiliato
Dreamers Srl
Corso XXV Aprile, 44/A 13048 Santhià (VC)

2025 Tecnocasa Franchising S.p.A. - P. IVA 08365160152 - Via Monte Bianco 60/A 20089 Rozzano (MI). Ogni agenzia ha un proprio titolare ed è autonoma. Privacy policy | Policy utilizzo | Cookie policy