Attività in vendita

Vercelli, Via Elia Emanuele Foà
€ 30.000
3 locali 3 locali
106 Mq 106 Mq
1 bagno 1 bagno

Attività in vendita

Vercelli, Via Elia Emanuele Foà

Descrizione annuncio

Attività commerciale alimentare in vendita a Vercelli – Rivendita di prodotti bio e sostenibili

Siamo lieti di proporre un'opportunità unica per subentrare in una realtà commerciale già avviata e con una forte identità, situata in posizione invidiabile: a soli 200 metri da Piazza Cavour e a pochi passi dal centro storico di Vercelli.

Questa attività non è solo un negozio, ma un punto di riferimento per le scelte alimentari consapevoli e sostenibili, specializzato in prodotti biologici, senza glutine, vegetariani, vegani e a chilometro zero.

Caratteristiche e struttura del negozio

L’attività viene ceduta completa di tutto l’arredo, così da poter proseguire senza ulteriori investimenti iniziali.

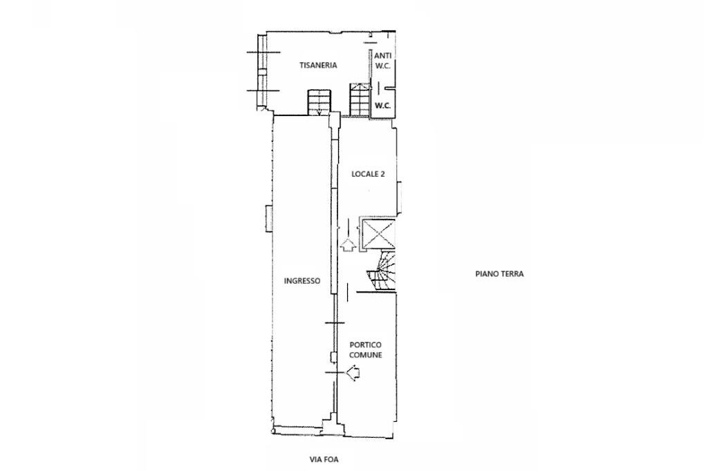
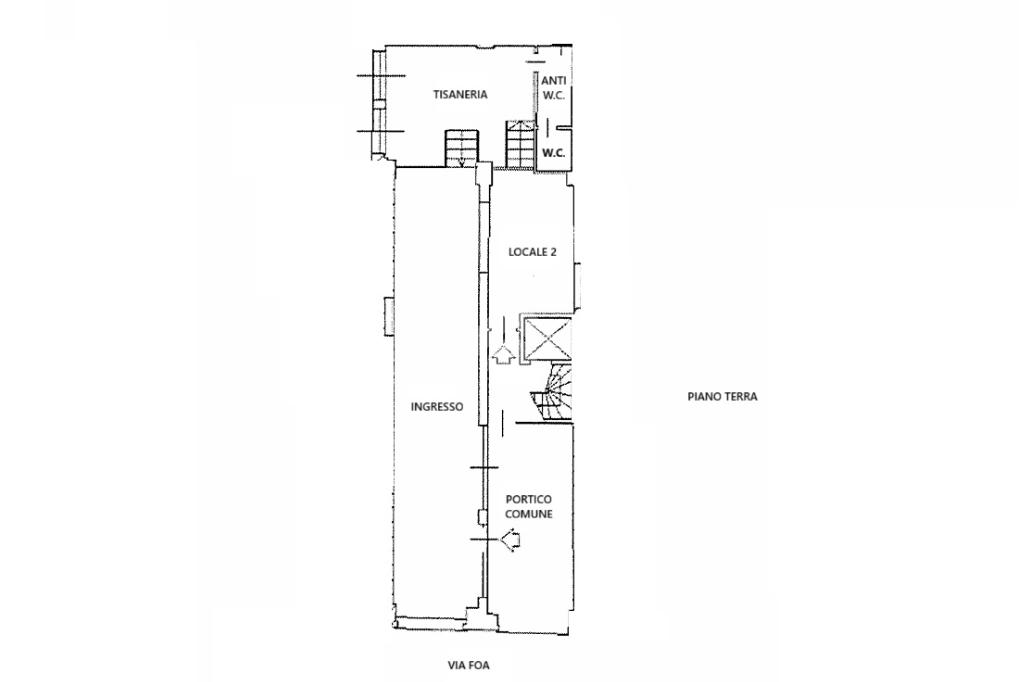
Il locale commerciale, non in vendita ma disponibile tramite subentro nel contratto di locazione, si sviluppa su una superficie utile di circa 71 mq, con ampi spazi accessori nel seminterrato, destinati allo stoccaggio e al laboratorio.

- Ingresso: circa 35 mq, con vetrina su Via Elia Emanuele Foà e ampia area principale per l'esposizione dei prodotti;

- Locale 1: circa 13 mq, anch’esso dedicato all’esposizione dei prodotti;

- Tisaneria: circa 19 mq, collegata all'ingresso tramite scala, utilizzata per l’esposizione delle erbe da infusione e perfetta come angolo relax;

- Bagno: cieco, con antibagno e boiler elettrico;

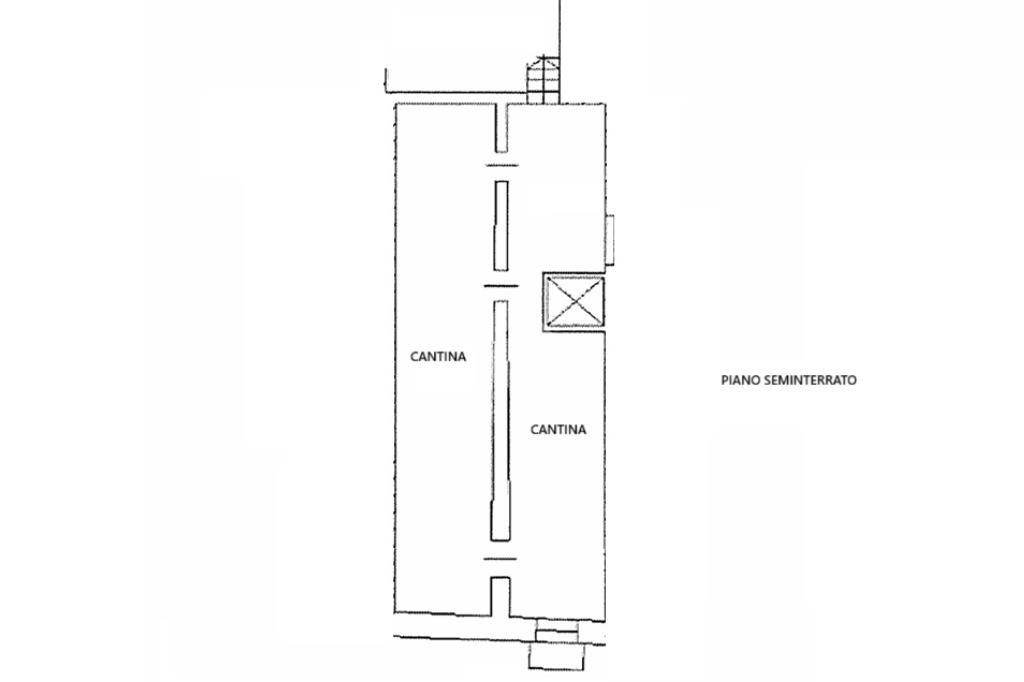
- Piano seminterrato: circa 70 mq, con cantina composta da due vani, ideali per stoccaggio, laboratorio o deposito.

Dotazioni

- Sistemi di ventilazione forzata;

- Riscaldamento autonomo tramite radiatori a metano (attualmente privo di allaccio);

- Arredo incluso.

Punti di forza

- Attività decennale e ben conosciuta

- Posizione imbattibile: a 200 metri da Piazza Cavour, garantisce un flusso costante di clienti e un’elevata visibilità nel cuore di Vercelli;

- Parcheggi pubblici e a pagamento nelle immediate vicinanze;

- Nicchia di mercato in crescita: specializzazione in prodotti bio e gluten-free (inclusi prodotti vegetariani e vegani), un settore con domanda in forte espansione;

- Costi di gestione contenuti: affitto del locale estremamente competitivo per la zona centrale.

Contattaci per maggiori informazioni o per fissare una visita e seguici sui social per non perdere aggiornamenti e novità in anteprima.

Il team di Dreamers Srl è a tua disposizione.

Mostra tutto

Nelle vicinanze

Trasporto pubblico Trasporto pubblico
stazione di Vercelli
stazione di Vercelli
810 m
Trasporto pubblico
70 m
Via Gattinara di Zubiena
Via Gattinara di Zubiena
200 m
Ricariche auto elettriche Ricariche auto elettriche
Municipio di Vercelli | IrenGO – atena
330 m
Piazza Mazzini | IrenGO – atena
500 m
Vercelli Stazione | IrenGO – atena
770 m
Vercelli Piazza Mazzucchelli | IrenGO – atena
850 m
Sede Enel Vercelli | EnelX
1,1 Km
Scuole Scuole
Scuola Media Statale Amedeo Avogadro
90 m
Liceo Classico Statale "Lagrange"
130 m
Università degli Studi del Piemonte Orientale "Amedeo Avogadro"
150 m
Scuola Materna Vittorio Mandelli
220 m
Scuola Primaria Rosa Stampa
230 m
Farmacia Farmacia
Parafarmacia di Via Gioberti
120 m
Amisano Alice SAS di Bagliani Carlo & C.
150 m
Ravera SNC di Ravera Paolo e C.
190 m
Farmacia Giachino
220 m
Dallari di Viazzo Antonella
250 m
Ospedali Ospedali
Ospedale Sant'Andrea
1,4 Km
Clinica Santa Rita
1,6 Km
Supermercati Supermercati
Bio Celia
220 m
iN's
510 m
Carrefour Market
630 m
Coop
670 m
A&O
760 m
Negozi Negozi
La Sartoria
60 m
Negozi
120 m
Grissinificio-Focacceria-Panificio
130 m
Panificio La Vetrata
140 m
Carrefour Express
150 m
Bar Bar
Bar Brek
20 m
Rosas Café
60 m
Gelateria Gelo e Gyoia
80 m
Il Broletto
100 m
Bar
140 m
Ristoranti Ristoranti
Ristorante Pizzeria Capri
70 m
Vecchia Brenta
130 m
Trattoria Paolino
180 m
Camillo's Bakery
250 m
Casa degli Elefanti
260 m
Mostra tutto

Caratteristiche

Rif.:
61146202
Piano:
Terra di 2
Totale piani:
2
Condizionamento:
Assente
Ascensore:
No
Riscaldamento:
Autonomo
Mostra tutto
Prezzo Prezzo
€ 30.000
Rata mutuo Rata mutuo
€ 142 / mese
Spese annue Spese annue
€ 0
Proponi il tuo prezzoProponi il tuo prezzo

Classe Energetica

G
G
G
G
G
G
G
G
G
EP globale non rinnovabile:
145.36 kW h/m² anno
EP globale rinnovabile:
2.01 kW h/m² anno
EP invernale del fabbricato:
EP estiva del fabbricato:
Anno di costruzione:
1960
Riscaldamento:
Autonomo
Tipo impianto:
A radiatori
Tipo alimentazione:
Metano

Ti interessa visionare l'immobile?

Fissa un appuntamento  Fissa un appuntamento

Richiedi informazioni

Clicca su Leggi per aprire l'informativa
* Questi campi sono obbligatori

Calcola il tuo mutuo

Semplice e senza impegno
Anticipo

( % )
Mutuo

( % )

pochi semplici passi

inserisci i tuoi dati
Questionario completato
Grazie per aver richiesto un appuntamento senza impegno con un nostro Consulente del Credito e Assicurativo.

Hai inserito correttamente tutti i dati necessari e a breve riceverai una e-mail con un link da convalidare per inviare i tuoi dati.
Affiliato
Dreamers Srl
Corso XXV Aprile, 44/A 13048 Santhià (VC)

Il nostro staff


  • Samantha Mainiero
    Coordinatrice

  • Marco Schiaroli
    Responsabile

  • Mattia Pietrosino
    Affiliato
Corso XXV Aprile, 44/A 13048 Santhià (VC)
Zona: Santhià-Chivasso-Torrazza P.te-Crescentino-Cigliano-Caluso-Rondissone
Mostra su mappa
Affiliato
Dreamers Srl
Corso XXV Aprile, 44/A 13048 Santhià (VC)

2025 Tecnocasa Franchising S.p.A. - P. IVA 08365160152 - Via Monte Bianco 60/A 20089 Rozzano (MI). Ogni agenzia ha un proprio titolare ed è autonoma. Privacy policy | Policy utilizzo | Cookie policy