Capannone in vendita

Vercelli, Corso Torino
€ 650.000
Prezzo aggiornato
5 locali 5 locali
5500 Mq 5500 Mq
2 bagni 2 bagni

Capannone in vendita

Vercelli, Corso Torino

Descrizione annuncio

Vendita Officina con Abitazione Locata, Tettoie e Terreni a Vercelli - 5.500 mq

In posizione strategica, a soli 5 km dall'autostrada e a pochi minuti dal centro di Vercelli, proponiamo in vendita un interessante complesso immobiliare composto da capannone, laboratorio artigianale, due terreni e abitazione su due livelli.

Caratteristiche

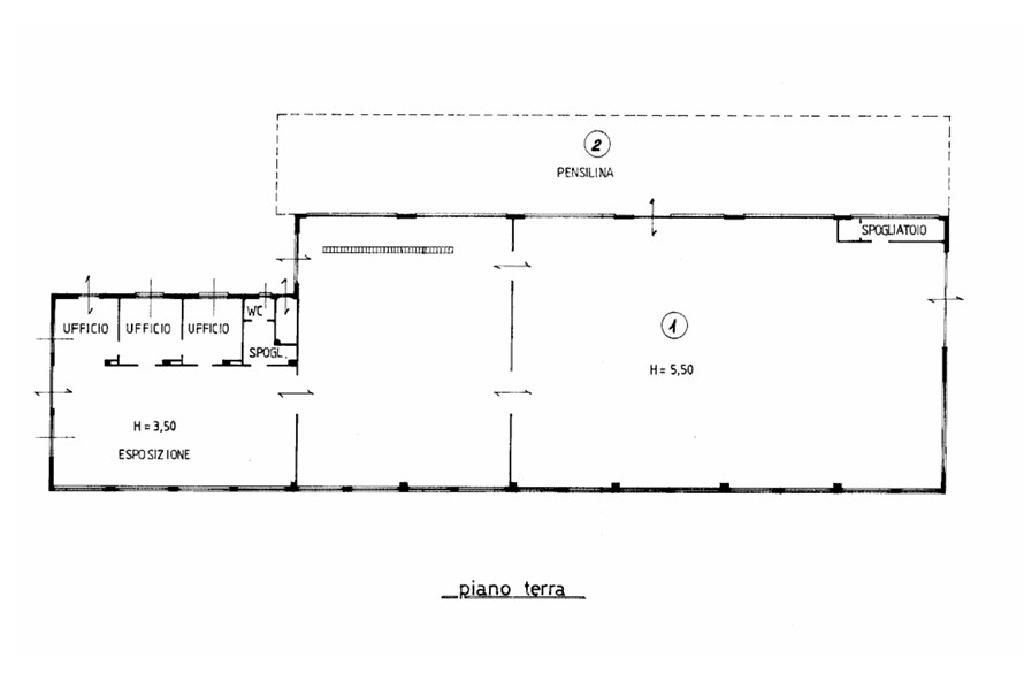
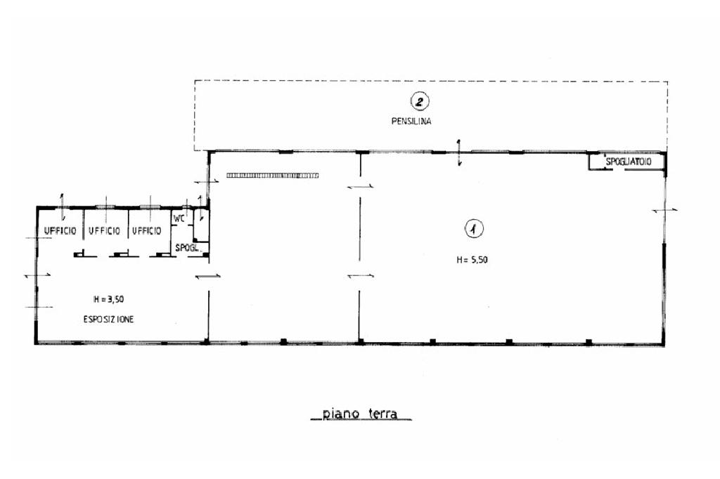
- Uffici: circa 150 mq, suddivisi in tre locali da 15 mq ciascuno, area espositiva, spogliatoio e servizi igienici;

- Area commerciale: circa 200 mq con cassa;

- Deposito: circa 300 mq di capannone con altezza interna massima di 5,5 m;

- Tettoia: circa 200 mq, sviluppata lungo il complesso;

- Tettoie aggiuntive: circa 170 mq e 250 mq, situate nell'area esterna;

- Terreno 1: circa 900 mq, all'esterno dell'area recintata, adiacente alle tettoie;

- Terreno 2: circa 1.200 mq, parte dell'area cortilizia complessiva di 2.000 mq;

- Edificio fronte strada su due livelli: circa 230 mq totali, composto da laboratorio con garage al piano terra e appartamento quadrilocale al primo piano (attualmente locato).

Dotazioni

- Tetti del capannone e delle tettoie rifatti nel 2019;

- Impianti a norma di legge;

- Ampia area esterna ad uso parcheggio, manovra o deposito materiali.

Punti di Forza

- Versatilità d'uso: officina, magazzino, deposito, uffici o abitazione;

- Posizione strategica, a soli 5 km dall'autostrada e ben collegata al centro città;

- Ottimo investimento con unità immobiliari già locate.

Verifica documentale in corso. La descrizione, i dettagli e le foto sono pertanto puramente descrittivi e a scopo illustrativo.

Contattaci per maggiori informazioni o per fissare una visita e seguici sui social per non perdere aggiornamenti e novità in anteprima.

Il team di Dreamers SRL è a tua disposizione.

Mostra tutto

Nelle vicinanze

Trasporto pubblico Trasporto pubblico
stazione di Vercelli
stazione di Vercelli
1,6 Km
C.so Torino/via Ortigara
C.so Torino/via Ortigara
30 m
Via Torino/Bertinetti
Via Torino/Bertinetti
260 m
Ricariche auto elettriche Ricariche auto elettriche
LIDL Vercelli
300 m
ALDI Vercelli
480 m
Euronics Vercelli
570 m
Vercelli Piazza Mazzucchelli | IrenGO – atena
1,3 Km
Vercelli Stazione | IrenGO – atena
1,5 Km
Scuole Scuole
Scuola Primaria Comunale Regina Pacis
640 m
Scuola Media Statale Luigi Verga
1,2 Km
Istituto Professionale Statale Francis Lombardi
1,3 Km
Scuola Primaria Comunale Giosuè Carducci
1,3 Km
Scuola Media Statale Gaudenzio Ferrari
1,4 Km
Farmacia Farmacia
Comunale 2
400 m
Più Medical
660 m
Parafarmacia E' Qui
1,3 Km
Belvedere del Dr. Antonio Mentasti & C. SNC
1,3 Km
Farmacia Parovina
1,3 Km
Ospedali Ospedali
Ospedale Sant'Andrea
1,4 Km
Clinica Santa Rita
2,2 Km
Supermercati Supermercati
EuroSpin
130 m
Lidl
330 m
Penny
520 m
Aldi Srl
520 m
Supermercati
580 m
Negozi Negozi
C&A
260 m
Shun-Fa
470 m
Li-Fa
650 m
Pittarello
690 m
FACIT Confezioni
720 m
Bar Bar
Sol y Luna
1,1 Km
Bar
1,2 Km
La Gare
1,5 Km
Bijou Café
1,6 Km
Twenty
1,7 Km
Ristoranti Ristoranti
Pizzeria Torino
260 m
Mas
460 m
Old Wild West Vercelli Carrefour
540 m
Ristorante Pizzeria L'Araba Fenice
560 m
Ristoranti
830 m
Mostra tutto

Caratteristiche

Rif.:
61130409
Piano:
Terra di 2
Totale piani:
2
Box:
1
Balconi:
1
Condizionamento:
Assente
Mostra tutto
Prezzo Prezzo
€ 650.000
Rata mutuo Rata mutuo
€ 3.068 / mese
Spese annue Spese annue
€ 0
Proponi il tuo prezzoProponi il tuo prezzo

Classe Energetica

D
D
D
D
D
D
D
D
D
EP globale non rinnovabile:
743.49 kW h/m² anno
EP globale rinnovabile:
90.86 kW h/m² anno
EP invernale del fabbricato:
EP estiva del fabbricato:
Anno di costruzione:
2000
Riscaldamento:
Autonomo
Tipo impianto:
A radiatori
Tipo alimentazione:
Metano

Prezzo ridotto di €1 (19%%)

Ti interessa visionare l'immobile?

Fissa un appuntamento  Fissa un appuntamento

Richiedi informazioni

Clicca su Leggi per aprire l'informativa
* Questi campi sono obbligatori

Calcola il tuo mutuo

Semplice e senza impegno
Anticipo

( % )
Mutuo

( % )

pochi semplici passi

inserisci i tuoi dati
Questionario completato
Grazie per aver richiesto un appuntamento senza impegno con un nostro Consulente del Credito e Assicurativo.

Hai inserito correttamente tutti i dati necessari e a breve riceverai una e-mail con un link da convalidare per inviare i tuoi dati.
Affiliato
Dreamers Srl
Corso XXV Aprile, 44/A 13048 Santhià (VC)

Il nostro staff


  • Samantha Mainiero
    Coordinatrice

  • Marco Schiaroli
    Responsabile

  • Mattia Pietrosino
    Affiliato
Corso XXV Aprile, 44/A 13048 Santhià (VC)
Zona: Santhià-Chivasso-Torrazza P.te-Crescentino-Cigliano-Caluso-Rondissone
Mostra su mappa
Affiliato
Dreamers Srl
Corso XXV Aprile, 44/A 13048 Santhià (VC)

2025 Tecnocasa Franchising S.p.A. - P. IVA 08365160152 - Via Monte Bianco 60/A 20089 Rozzano (MI). Ogni agenzia ha un proprio titolare ed è autonoma. Privacy policy | Policy utilizzo | Cookie policy